All reflected ceiling plan dimensions are from finished face to finished face.

Residential reflected ceiling plan examples.
Reflected ceiling plan rcp 1.
With massive built in reflected ceiling plan symbols it is quite easy to draw reflected ceiling plans.
Reflected ceiling plan templates is very convenient to use for they are available to edit and modify.
All dropped ceilings are 9 0 above finish floor unless otherwise noted.
It is an effective tool for architects designers builders electricians and.
Residential reflected ceiling plan examples.
Kitchen reflected ceiling plan example c 2013 corey klassen ckd used under permission from the national kitchen bath association a full service award winning interior design firm based in vancouver bc working in residential kitchen bath design decorating custom cabinets commercial design.
Shelly lighting october 8 2018.
Reflected ceiling plans solution conceptdraw com credit to.
It depends on the size of the plan a larger plan will require more sheets smaller plans can fit more items on a single sheet.
Reflected ceiling plans solution extends greatly the conceptdraw diagram functionality with samples templates and libraries of design elements for displaying the ceiling ideas for living room bedroom classroom office shop restaurant and many other premises.
Reflected ceiling plans reflected ceiling plans rcp are named so because they are mirror images reflected view of the floor plan.
Not all house plan sets are the same.
Reflected ceiling notes 1.
You are looking up at the ceiling.
Apartment reflected ceiling plan kitchen reflected ceiling plan example c 2017 corey klassen ckd under permission from the national bath association simple reflected ceiling plan examples.
The electrical construction drawings must be referred to in order to determine the electrical wiring of the ceiling lights and sprinklers.
The reflected ceiling plan focuses on the everything on the ceiling.
Architectural graphics 101 reflected ceiling plans january 5 2017 by bob borson 68 comments maybe this will be exciting maybe it wont but i am going to start writing a few articles a month on architectural graphics and what ive done to get my drawings to look the way they do.
Refer to floor plans for room names and numbers.
Residential reflected ceiling plan examples.
Visit the post for more.
This example will show the reflected ceiling continue reading the post reflected ceiling electrical plan 5 of 11 appeared first on sater design collection.
Reflected ceiling plans rcp mel fee adv.
Reflected ceiling electrical plan then in the floor plan specified reflected ceiling will be labeled with a specific number you find very few competitors provide this detail on simple house plans with photos beautiful residential reflected ceiling plan pdf ceiling plan details pdf www gradschoolfairs com.
All fixtures shown at ceiling grid to be.
Come and act now to download the reflected ceiling plan templates for your own use.
Floor Plan Wikipedia
Planit Measuring As Built Measuring And Modeling Services
Reflected Ceiling Plans Solution Conceptdraw Com
3 Ways To Read A Reflected Ceiling Plan Wikihow
Plans Of Museums A Collection Curated By Divisare
Ceiling Plan Restaurant Reflected Ceiling Plan Ceiling
Residential Drafting Services 7 Key Types Of Interior Drawings
Reflected Ceiling Plan Floor Plan Solutions
Residential Drafting Services 7 Key Types Of Interior Drawings
Plumbing And Piping Plan Examples And Templates
Residential As Built Surveys Us As Built
About The View Range Revit Products 2019 Autodesk
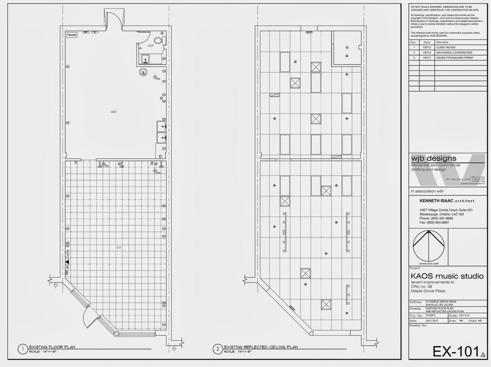
Wjb Designs Residential Commercial Architecture October 2013
Reflected Ceiling Plan Examples
Residential Drafting Services 7 Key Types Of Interior Drawings
Residential Drafting Services 7 Key Types Of Interior Drawings
Reflected Ceiling Plans Solution Conceptdraw Com
Reflected Ceiling Plans Solution Conceptdraw Com
Home Reflected Ceiling Plan Free Home Reflected Ceiling
Floor Plan Wikipedia
Archicad 21 House Project Part 33 Reflected Ceiling Plan
About The View Range Revit Products 2018 Autodesk
Free Printable Floor Plan Templates Download
Mechanical Drawings Building Codes Northern Architecture
Planit Measuring As Built Measuring And Modeling Services
3 Ways To Read A Reflected Ceiling Plan Wikihow
Kitchen Reflected Ceiling Plan Example C 2013 Corey
Design Intent Drawing Review Guide
Reflected Ceiling Plan Building Codes Northern Architecture
3 Ways To Read A Reflected Ceiling Plan Wikihow
Reflected Ceiling Plans Solution Conceptdraw Com
What Is In A Set Of House Plans Sater Design Collection
What Is In A Set Of House Plans Sater Design Collection
Building Plan Examples Examples Of Home Plan Floor Plan
Architectural Graphics 101 Number 1 Life Of An Architect
Reflected Ceiling Plans Solution Conceptdraw Com
Technical Drawing Guide
Construction Documents Reflected Ceiling Plan Sample Page
Plans Tag Archdaily
Plans Tag Archdaily
Residential As Built Surveys Us As Built
The Process Of Design Construction Documents Moss
Construction Document Examples Jill Sornson Kurtz Archinect
Calculate The Total Area Of A Floor Plan Roomsketcher App
Floor Plan Wikipedia
Home Reflected Ceiling Plan Free Home Reflected Ceiling
Reflected Ceiling Plan Building Codes Northern Architecture
Residential As Built Surveys Us As Built
Reflected Ceiling Plans Solution Conceptdraw Com
Blog Sketchup For Interior Designers
Revit 2014 Create New Ceiling Plans Selection Filter Copy Paste Dimensions Cadclips
Home Wiring Plan Software Making Wiring Plans Easily
Reflected Ceiling Plan Floor Plan Solutions
7 Types Of Architectural Plans For Your Next Design Cad Crowd
How To Create A Reflected Ceiling Plan Reflected Ceiling
Reflected Ceiling Plans Solution Conceptdraw Com
Construction Drawing Portfolio Tesla Outsourcing Services
Building Plan Examples Examples Of Home Plan Floor Plan
Floor Plan Wikipedia
Mechanical Systems Drawing Wikipedia
How To Draw A Reflected Ceiling Floor Plan
Technical Drawing Guide
Design Intent Drawing Review Guide
Design Intent Drawing Review Guide
Reflected Ceiling Plan Symbols Electrical Telecom Home
Design Intent Drawing Review Guide
Reflected Ceiling Plan Floor Plan Solutions
Electrical Wiring Diagram Legend House Wiring Electrical
Reflected Ceiling Plans Solution Conceptdraw Com
Residential Drafting Services 7 Key Types Of Interior Drawings
Reflected Ceiling Plan Building Codes Northern Architecture
How To Draw A Floor Plan To Scale 13 Steps With Pictures
Building Plan Examples Examples Of Home Plan Floor Plan
How To Read Electrical Plans Construction Drawings
Architectural Graphics 101 Number 1 Life Of An Architect
What Is In A Set Of House Plans Sater Design Collection
House Wiring Planning Wiring Diagram
3 Ways To Read A Reflected Ceiling Plan Wikihow
Reflected Ceiling Plans Solution Conceptdraw Com
Week 7 Powerpoint Reflected Ceiling Plans
3 Ways To Read A Reflected Ceiling Plan Wikihow
Design Intent Drawing Review Guide
Custom House Plans Reflected Ceiling Plan Florida Architect
Reflected Ceiling Plans Solution Conceptdraw Com
The Process Of Design Construction Documents Moss
Hvac Plans Examples Wiring Diagram Raw
Architectural Graphic Standards Life Of An Architect
Building Plan Examples Examples Of Home Plan Floor Plan
House Wiring Planning Wiring Diagram
Residential Drafting Services 7 Key Types Of Interior Drawings
How To Read Electrical Plans Construction Drawings
Reflected Ceiling Plan Building Codes Northern Architecture
Architectural Graphics 101 Wall Types Life Of An Architect
Reflected Ceiling Plans How To Create A Reflected Ceiling
Residential Drafting Services 7 Key Types Of Interior Drawings
Design Intent Drawing Review Guide
Residential Design By Jonathan Pelezzare Working Drawings
Floor Plan Wikipedia